Back to search results

Layout- und Investitionsplanung für einen Hersteller von hochwertigen Massivholzmöbeln

  • Degree programme: Dipl. Techniker/in HF Holztechnik
  • Author: Frank Landes
  • Thesis advisor: Prof. Bernhard Letsch
  • Expert: Hubert Kern
  • Industrial partner: ag möbelfabrik horgenglarus Glarus
  • Year: 2025

Download PDF

Die «ag möbelfabrik horgenglarus» hat nach jahrelanger Suche einen neuen Standort gefunden. Eine einmalige Chance, einen neuen und modernen Standort zu planen, an dem Prozesse und Materialfluss optimiert sind. Es werden Grundlagen für die detaillierte Layout - und Investitionsplanung in verschiedenen zukünftigen Varianten geschaffen, unter Einbezug der Möglichkeiten der Automatisierung.

Ausgangslage

Da die Liegenschaft in Glarus seit 1999 nicht mehr im Besitz der «ag möbelfabrik horgenglarus» ist, tätigen «horgenglarus» und der Eigentümer nur noch die notwendigsten Investitionen in die räumliche Infrastruktur. Die räumliche Anordnung wird seither nur geringfügig an die sich ändernden Prozesse angepasst.

Zielsetzung 

Es soll ein ideales, zukunftsfähiges Layout für die Produktionshalle entwickelt werden, das zu einer höheren Produktivität führt und den folgenden Zielkriterien entspricht: Effizienz, Reduktion, Transparenz, Future, Human, Qualität, Dokumentation. Ein übergeordnetes Ziel ist die vertiefte Auseinandersetzung mit „Lean Manufacturing“ (LM), um kontinuierliche Prozessverbesserungen zu ermöglichen.

Vorgehensweise / Methodik

Allgemein wurden für alle Ausarbeitungen Workshops und Diskussionsrunden mit internen Stakeholdern und externen Fachleuten durchgeführt, wodurch Entscheidungen herbeigeführt werden konnten. Die Durchführung fundierter IST-Analysen bildet die Grundlage für alle Konzepte. Wichtige Parameter sind der Maschinenbestand, der Umsatz- bzw. Stückzahlenvergleich von Stuhlmodellen und deren Varianten, die Tagesmengen sowie die Abteilungskapazitäten. Die detaillierte ABC-Analyse der Stuhlmodelle zeigt, welche Lagerhaltung bzw. Losgrösse für Halbfabrikate sinnvoll ist, und ermöglicht eine fundierte Sortimentsdiskussion. Die Definition von Zukunftszielen, eine Wirtschaftlichkeitsbetrachtung für den Produktionsprozess Zuschnitt am Anfang der Fertigung und die Ausarbeitung von Automatisierungsmöglichkeiten sind wesentliche Bestandteile der Entscheidungsgrundlage für die Gesamtinvestitionen. Die Planungsgrundlagen und -prinzipien konnten zusätzlich durch Prozessanalysen und -anpassungen definiert werden. Da das Produktionsprogramm eine klare ABC-Modell-Differenzierung sowie einen Mix aus zugekauften und selbst gefertigten Halbfabrikaten aufweist, wird ein hybrider Ansatz in der Produktionsplanung aus PULL- und PUSH-Prinzip als optimal angesehen. Die Durchführung eines Variantenstudiums der Layouts erfolgte gemäss den Planungsgrundlagen zunächst im Groblayout, wurde jeweils den fortlaufenden Veränderungen angepasst und mit den externen Detailplänen der Maschinen und Anlagen verfeinert. Für die Varianten wurde ein Investitionsplan als Empfehlung ausgearbeitet, woraus Entscheidungen resultieren können.

Ergebnisse / Ausblick

Basierend auf den Analysen und Planungsgrundsätzen wurden unter Berücksichtigung des Volumenstroms übersichtliche Layout-Varianten mit ausreichenden Kapazitäten entwickelt. Diese Ergebnisse konnten für die weiteren Ausarbeitungen den Architekt*innen und der Bauherrschaft übergeben werden, damit im weiteren Verlauf die Schnittstellen zwischen Vermieter- und Mieterausbau definiert und dadurch die Gesamtkosten ermittelt werden können. Die Investitionen für die Produktion sind als Empfehlung für ein zukunftsfähiges «horgenglarus» zusammengefasst. Dieses Szenario dient als strategische Grundlage für weitere priorisierte Entscheidungen, um den Umzug optimal zu nutzen. Mit der vorliegenden Arbeit wurden die wesentlichen Grundlagen für die weiteren Planungsschritte erarbeitet.

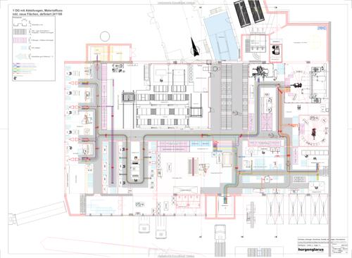
Stand der Planung 05.12.2024 - Layout Produktionshalle 1 OG
Back to search results